ID# 1168 - 3
Ground Floor For Sale
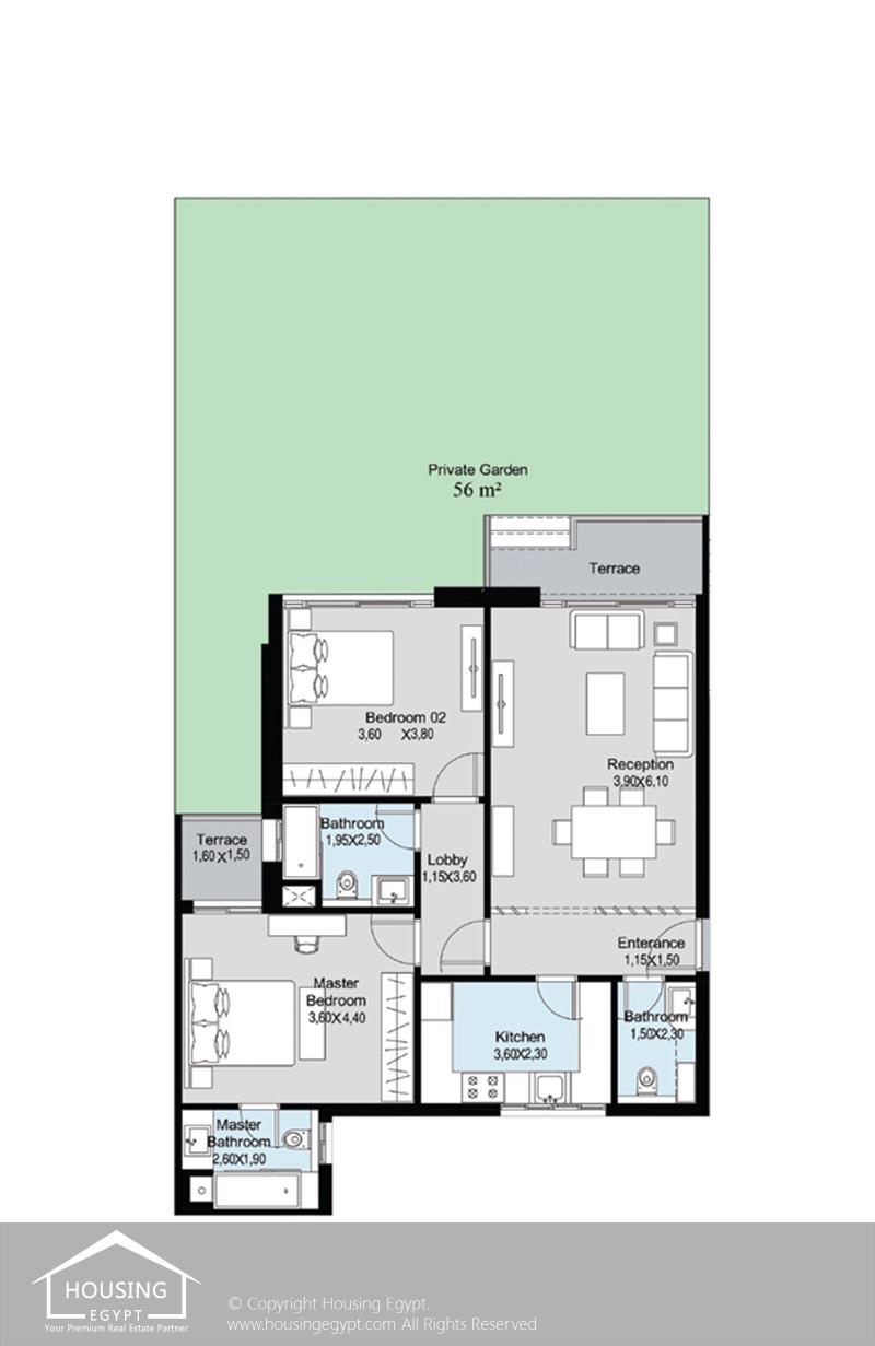
BUA: 136 m2
Type : G

2 - 2 - 1 - 1

Scenario

R7 - New Capital
Garden Area: 76 m2
Fully Finished
Sold Out
Resale Units Available

Layouts

Property Facilities
Private Garden
Private Parking
Private Entrance
Security

Compounds Facilities
Club House
Medical Center
Swimming Pools
Kids Areas
Gym
Security
Commercial Area

Share
Request Information

Valid

By sending a request you agree to our
Privacy Policy

Call Us Whatsapp
Request Information

Valid

By sending a request you agree to our
Privacy Policy

Call Us Whatsapp

Scenario

Welcome to Scenario, AKAM Developments’ newest creation. With exceptional services and extraordinary amenities, you can choose your very own scenario and have the power to shape your home. Live your own magical scenario and experience a life of unlimited opportunities. Forget the challenges of the real world and step into your own selected SCENARIO.

Visit Compound

Akam Al Rajhi Developments

Having renowned names that outline your future with such a strong signature like Akam’s & AlRajhi’s is what we are here for. Perfectly where the two giants collaborate to create an unparalleled human experience in the form of homes, communities and solutions that are built on studies, research and a history of successful human habitat.

A grand joint venture well bonded to imprint a remarkable milestone in the real estate market, two industry giants determined to change the norm and build communities that inspire. Akam; with its wide experience and innovative solutions to enhance human lives, and AlRajhi; with a great history of trust established over the years, are creating a new name today to empower the world with a brand new definition of enhanced homesteading.

Visit Developer