ID# 1386 - 2
Townhouse For Sale
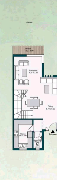
BUA: 165 m2

3 - 3 - 2 - 1

The Lakes

Phase of Bloomfields compound
Mostakbal City - New Cairo
Land Area: 227 m2
Terrace Area: 36 m2
Core and Shell

Layouts

Property Facilities
Private Garden
Private Parking
Private Entrance
Private Terrace

Share
Request Information

Valid

By sending a request you agree to our
Privacy Policy

Call Us Whatsapp
Request Information

Valid

By sending a request you agree to our
Privacy Policy

Call Us Whatsapp

The Lakes

A true experience of tranquility. Immerse yourself in the breathtaking panrama of the lakes around you, with endless horizons of water seen directly from your villas’ exquisite gardens and duplexes’ verandas. Whether you are dining in the indoors or relaxing in the outdoors, every day is a true experience of luxury. On the lake-facing patios, revel in the infinity pool and bask in the sun on your private decks. The living spaces are just as serene, where the indoors and outdoors blend to reimagine endless harmony all throughout the year.

Visit Compound

Tatweer Misr

Boasting a wealth of industrial and technical expertise, Tatweer Misr has been offering an innovative outlook on integrated living to strongly emerge as a leading real-estate developer in Egypt, fulfilling the rising demand on mixed-use projects that enrich the life of its communities.

Visit Developer